
Date
April 1, 2027
Duration
7 nights
Departure Port
Amsterdam · Netherlands
Arrival Port
Amsterdam · Netherlands
Rating
Luxury
Theme
History & Culture








Avalon Waterways
Suite Ship
2016
—
2,775 GT
166
83
47
443 m
12 m
12 knots
No



Few can resist the grand beauty of Amsterdam’s famous canals, which thread through this place of evocative beauty and thrilling contrast. Open-minded and tolerant, Amsterdam is a place for history buffs and hedonists alike, and its diverse neighbourhoods have something for everyone - whether it’s the beachside relaxation of Bloemendaal, nocturnal thuds of Buiksloterham, or characterful charm of Jordaan. 160 serene canals serve as the arteries of this city, imbuing it with its unique essence. Cruise along concentric waterways, past cherry red and oak-wood cladded houseboats, as you learn of its Golden Age history. Culture is also deep in Amsterdam’s DNA, and the Van Gogh Museum – which pays tribute to the tortured genius of the Dutch post-impressionist artist - stands out among its leading museums and galleries. One of history’s greatest tragedies is also rendered in heart-breaking clarity at Anne Frank House. Visit the site where the precocious teenager hid from the Nazi regime for so long, and the room where she penned the most famous diary ever written. Compact and easily walkable, Amsterdam remains consistently postcard-perfect as you watch bright bicycles trundling over ornate bridges, and stumble across hidden, tulip-decorated courtyards. ‘Gezellig’ is the local word for Amsterdam’s unhurried outlook on life. No translation can quite do the concept justice, but you’ll recognise it instinctively as hours float by in a happy haze browsing De Negen Straatjes street’s independent shops, or as you sip coffee with gooey stroopwafel. Broodje haring - a raw herring sandwich - is Amsterdam’s must-try delicacy, but many visitors find tompouce, a delicious pastry topped with vivid pink icing, a little more to their taste.



Your MSC cruise will lay anchor in the largest port in the world, Rotterdam, is a no-nonsense working-class city lying at the heart of a maze of rivers and artificial waterways that together form the outlet of the rivers Rijn (Rhine) and Maas (Meuse). After devastating damage during World War II, Rotterdam has grown into a vibrant, forceful city dotted with first division cultural attractions. Your MSC cruise of Northern Europe will give you the opportunity to see that the immense land reclamation work hasn’t obliterated its earthy character though: its tough grittiness is part of its appeal, as are its boisterous bars and clubs. Amongst the most interesting attractions to enjoy during your vacation in Holland, is Rotterdam’s Kunsthal, the museum of contemporary art, and the Boijmans van Beuningen Museum, which has an outstanding art collection including representative works from almost all the most important Dutch painters: both are in the city’s designated culture zone, the Museumpark. Other interesting sites to visit on an MSC excursion are the Oude Haven, the city’s oldest harbour, ravaged during World War II but sympathetically redeveloped, and Delfs haven, an antique harbour that managed to survive the bombs pretty much intact. Rotterdam also boasts a string of first-rate festivals, including the much-lauded North Sea Jazz Festival and the colourful Summer Carnival. The postwar period saw the rapid reconstruction of the docks and, when huge container ships and oil tankers made the existing port facilities obsolete, Rotterdammers promptly built an entirely new deep-sea port, the Europoort, jutting out into the North Sea some 25 km to the west of the old town. Completed in 1968, the Europoort is able to welcome the largest ships in the world, amongst which also the MSC cruise ships.


Antwerp is a stylish and sophisticated city filled with monumental reminders of its prosperous medieval and Renaissance past, currently reinventing itself as an exciting contemporary city. Long a major diamond center, it is now making a name as an important player on the world fashion scene. Belgium has the highest density of Michelin star restaurants in Europe, and Antwerp has become a hot spot for foodies. Numerous urban renewal projects are underway, especially in the arts, including MAS, a new museum of the city and a spectacular architectural achievement, and MoMu, a trendy fashion museum.

This old university town buzzes with energy. Rich in cultural attractions, it also boasts a varied nightlife, with imposing architectural monuments serving as a backdrop. During the ‘Gentse Feesten’ – a ten-day festival of street performance, music and culture that takes place in the city centre every July – these magnificent buildings really come into their own, illuminated by light installations It is a truly spectacular sight.

Middelburg is a city and municipality in the south-western Netherlands serving as the capital of the province of Zeeland. Situated on the central peninsula of the Zeeland province, Midden-Zeeland, it has a population of about 48,000.

Veere functioned as the staple port for Scotland between 1541 and 1799. In Scotland it was known as Campvere. Until the Anglo-Dutch wars it was an important trading port for the import among other things, of saffron from East Anglian ports such as Wells.




Few can resist the grand beauty of Amsterdam’s famous canals, which thread through this place of evocative beauty and thrilling contrast. Open-minded and tolerant, Amsterdam is a place for history buffs and hedonists alike, and its diverse neighbourhoods have something for everyone - whether it’s the beachside relaxation of Bloemendaal, nocturnal thuds of Buiksloterham, or characterful charm of Jordaan. 160 serene canals serve as the arteries of this city, imbuing it with its unique essence. Cruise along concentric waterways, past cherry red and oak-wood cladded houseboats, as you learn of its Golden Age history. Culture is also deep in Amsterdam’s DNA, and the Van Gogh Museum – which pays tribute to the tortured genius of the Dutch post-impressionist artist - stands out among its leading museums and galleries. One of history’s greatest tragedies is also rendered in heart-breaking clarity at Anne Frank House. Visit the site where the precocious teenager hid from the Nazi regime for so long, and the room where she penned the most famous diary ever written. Compact and easily walkable, Amsterdam remains consistently postcard-perfect as you watch bright bicycles trundling over ornate bridges, and stumble across hidden, tulip-decorated courtyards. ‘Gezellig’ is the local word for Amsterdam’s unhurried outlook on life. No translation can quite do the concept justice, but you’ll recognise it instinctively as hours float by in a happy haze browsing De Negen Straatjes street’s independent shops, or as you sip coffee with gooey stroopwafel. Broodje haring - a raw herring sandwich - is Amsterdam’s must-try delicacy, but many visitors find tompouce, a delicious pastry topped with vivid pink icing, a little more to their taste.



Few can resist the grand beauty of Amsterdam’s famous canals, which thread through this place of evocative beauty and thrilling contrast. Open-minded and tolerant, Amsterdam is a place for history buffs and hedonists alike, and its diverse neighbourhoods have something for everyone - whether it’s the beachside relaxation of Bloemendaal, nocturnal thuds of Buiksloterham, or characterful charm of Jordaan. 160 serene canals serve as the arteries of this city, imbuing it with its unique essence. Cruise along concentric waterways, past cherry red and oak-wood cladded houseboats, as you learn of its Golden Age history. Culture is also deep in Amsterdam’s DNA, and the Van Gogh Museum – which pays tribute to the tortured genius of the Dutch post-impressionist artist - stands out among its leading museums and galleries. One of history’s greatest tragedies is also rendered in heart-breaking clarity at Anne Frank House. Visit the site where the precocious teenager hid from the Nazi regime for so long, and the room where she penned the most famous diary ever written. Compact and easily walkable, Amsterdam remains consistently postcard-perfect as you watch bright bicycles trundling over ornate bridges, and stumble across hidden, tulip-decorated courtyards. ‘Gezellig’ is the local word for Amsterdam’s unhurried outlook on life. No translation can quite do the concept justice, but you’ll recognise it instinctively as hours float by in a happy haze browsing De Negen Straatjes street’s independent shops, or as you sip coffee with gooey stroopwafel. Broodje haring - a raw herring sandwich - is Amsterdam’s must-try delicacy, but many visitors find tompouce, a delicious pastry topped with vivid pink icing, a little more to their taste.



Comfort Collection Beds
European-style duvets
Soft & firm pillows
Extra blankets
Choice of bed configuration
Hairdryer
L'Occitane bath products
Spacious 3-door closets with shelves for ample storage
Alarm clock
Direct-dial telephone
Individual climate control
Elegant, contemporary design
Large mirror in bathroom
Marble countertops in bathroom
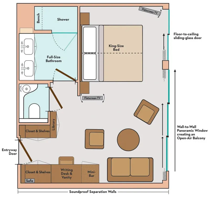
Wall-to-Wall Panoramic Window with Open-Air Balcony
6-person sitting area
Full shower with glass door
Vanity and lighted makeup mirror
Sofa
USB Ports



Stateroom Features:
Comfort Collection Beds
Luxurious mattress toppers
Egyptian super-combed cotton linens
European-style duvets
Soft & firm pillows
Extra blankets
Choice of bed configuration
Nightly turn-down service
Bedside tables with reading lamps
Premium Hairdryer
L'Occitane bath products
Spacious 3-door closets with shelves for ample storage
Easy under-bed luggage storage
Flatscreen satellite TV with English-speaking channels & over 100 free movie options
Alarm clock
Make-up mirror
Direct-dial telephone
Bathrobes & slippers
Well-stocked minibar
Complimentary filtered water
In-room safe
Individual climate control
Elegant, contemporary design
Large mirror in bathroom
Marble countertops in bathroom
Wall-to-Wall Panoramic Window with Open-Air Balcony
6-person sitting area
Full shower with glass door
Writing desk and chair
Lighted makeup mirror
Sofa
Coffee table
Double sinks
Complimentary Wi-Fi
USB Ports
One King-Sized Bed or Two Twins



Stateroom Features:
Comfort Collection Beds
Luxurious mattress toppers
Egyptian super-combed cotton linens
European-style duvets
Soft & firm pillows
Extra blankets
Choice of bed configuration
Nightly turn-down service
Bedside tables with reading lamps
Premium Hairdryer
L'Occitane bath products
Spacious 3-door closets with shelves for ample storage
Easy under-bed luggage storage
Flatscreen satellite TV with English-speaking channels & over 100 free movie options
Alarm clock
Direct-dial telephone
Bathrobes & slippers
Well-stocked minibar
Complimentary filtered water
In-room safe
Individual climate control
Elegant, contemporary design
Large mirror in bathroom
Two windows
Full shower with glass door
Writing desk and chair
Lighted makeup mirror
Complimentary Wi-Fi
One Queen-Sized Bed or Two Twins
USB Ports
Our cruise specialists can help you find the perfect cabin and the best available pricing.
(+886) 02-2721-7300Contact Advisor