
Passengers
130
Cabins
64
Tonnage
2,022t
Crew
37
Length
361m
Speed
13 knots
Launched
2012
Class
Suite Ship
Az Avalon díjnyertes Suite Ships flottájának részeként az Avalon Visionary két teljes panoráma lakosztály fedélzettel büszkélkedhet, ahol a falaktól falakig, padlótól plafonig érő panorámaablakok a lakóteret a folyami hajózás egyetlen nyitott erkélyévé varázsolják. A 200 négyzetláb alapterületű Panorama Suites több mint 30%-kal nagyobb az iparági átlagnál, páratlan lehetőséget kínálva arra, hogy minden reggel az ablak felé néző ágyadból csodálhasd a lenyűgöző, elhaladó tájat. Nyújtózkodj ki a Comfort Collection ágyadon, és hajózz úgy, hogy a világ a lábad előtt heverjen. A fedélzeten alternatív könnyű étkezési lehetőség vár a Panorama Bistro-ban, fitneszközpont, ingyenes Starlink Wi-Fi hozzáférés, valamint tágas Sky Deck prémium napozóágyakkal, pezsgőfürdővel és könnyű szabadtéri ebédekkel a Sky Bistro-ban a Sky Deck-en. Egy valóban előremutató dizájn!

















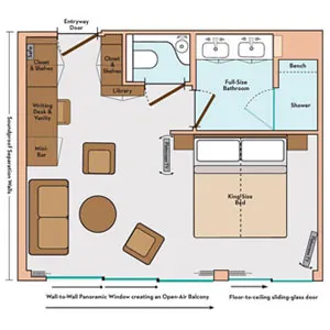
Panorama Suite



Royal Suite



Deluxe Stateroom



Dining Room
Reggeli: Frissen főzött kávék és panorámás kilátás mellett számtalan napfelkeltés választék várja Önt, beleértve a szuperélelmiszerek tornyait és a személyre szabott különlegességeket.
Ebéd: Töltődjön fel kalandjaihoz helyi finomságokkal és házi készítésű édességekkel – a világon egyedülálló specialitásoktól a földhözragadt, vágyott kedvencekig.
Vacsora: Akár egy pompás négyfogásos vacsorát, akár egy könnyed kóstoló menüt választ, a kézműves kiválóság mindig szerepel az étlapon.
Avalon Fresh: A szívbarát menü, amelyet mindenki imád.
Exkluzív Avalon Fresh menünkkel élvezheti a luxus hajóutat anélkül, hogy egészséges szokásairól lemondana. A reggeli ébresztő gyümölcslevektől a művészien összeállított ebéd salátákon át a magas fehérjetartalmú vacsora fogásokig az Avalon Fresh választék – beleértve a vegetáriánus és vegán specialitásokat is – minden étkezésnél elérhető, így bűntudat nélkül élvezheti a kreatív konyha ízeit anélkül, hogy a kiváló ízélményről le kellene mondania.



Sky Grill



Panorama Lounge & Bistro



Room Service



Sky Lounge
On the Sun deck you will find the Sky Lounge, where you can relax and catch the sun's rays whilst enjoying a drink or snack from the nearby Sky Grill.

Observation Lounge
VÁLOGASD ÖSSZE KÍVÁNCSISÁGAIDAT.
A legszebb napok azok, amikor tágra nyílt programmal, végtelen lehetőségekkel és egy üres vászonnal ébredünk, amelyet kedvünk szerint színezhetünk. Minden Avalon hajóút izgalmas, beleértve az Avalon Choice kirándulásokat, amelyek történelmi, misztikus, kulturális és gasztronómiai kalandokra hívják utasainkat, páratlan választékban és magas színvonalon. Az Avalonnal az utasok választhatnak.
Játssz a saját szabályaid szerint az ingyenes Choice kirándulásokkal!
Evezgess festői tájak között vagy tekerj végig klasszikus városképeken. Készíts generációkon át öröklődő ínycsiklandó fogásokat, vagy keverj festékeket, hogy megidézd a művészi zseni ecsetvonásait. Álmodozz ősi kastélyok termeiben vagy sétálj macskaköves falvak zegzugos utcáin. Válaszd ki, hogyan játszol, az exkluzív és beleértve az Avalon Choice kirándulásokat, hogy tökéletesen igazodjon az ízlésedhez, szenvedélyedhez és személyes stílusodhoz.
EGY HELYI IDEGENVEZETŐ, AKI VALÓBAN HELYI.
Mi az az Igazi Helyi Idegenvezető? Mondani sem kell, de úgy gondoljuk, hogy egy igazán helyi idegenvezető a tapasztalataiból ismeri a régiót – nem egy útikönyvből. Az Avalon Waterways utazásain részt vevő helyi idegenvezetők szenvedéllyel osztják meg a helyszínek mögötti legendákat és történeteket. Szívesen mutatják meg neked a világuk egy szeletét, hogy igazán átérezhess és megérthess újonnan felfedezett úti célokat.


Discovery Excursions
A CSELEKVŐKNEK.
Az érzékek felébresztése: az Avalon Discovery kirándulásai szívmelengető, elgondolkodtató, kézzel fogható kalandokat kínálnak. Foglalj helyet, hogy meghallgasd a bécsi keringőt, gyűrd fel az ingujjad, és fess úgy, mint Van Gogh, vagy vegyél fel egy kötényt, hogy elkészíts egy helyi különlegességet.



Active Excursions
AZ AKTÍV UTAZÓNAK.
Legyen szó kajakozásról, kerékpározásról vagy gyalogos felfedezésről, az Avalon Active kirándulásai élénk lendületet kínálnak. Kerékpáros, túrázós és hajós túrák várják azokat, akik szeretnek igazán mozgásban lenni és felfedezni a világot saját tempójukban.


Classic Excursions
AZ ÁLOMHAJTÓNAK.
Semmi sem múlja felül a klasszikusokat! Az Avalon Classic kirándulásai időtlen történetekkel kalauzolnak végig ikonikus városokon, fővárosokon és kastélyokon. Kerüld el a sorban állást, miközben a szíved hevesebben dobban azokban a termeiben, ahol a történelem született.


Avalon Adventure Center
The Adventure Center in your ship’s lobby has everything you need to make every day count, including FitBit trackers, stretch bands, yoga mats and more. For those who believe the world is a gym, your Adventure Host is ready to help you cruise down the road, up a mountain, or along the riverbank with complimentary bicycles, Nordic walking sticks and kayaks.
Complimentary Bicycles
Cyclists rejoice! Every Avalon ship is equipped with complimentary bicycles and e-bikes for scenic land cruising and in-town adventures. See your Avalon Adventure Host for maps, suggestions and personally tailored routes created with Komoot, the top-rated planning and navigation app for cycling and hiking.
Mindenkinek tökéletes választás.
Az kaland üdvözlése nem jelenti azt, hogy búcsút kell inteni egészséges szokásainknak és megújító rituáléinknak. A szívbarát ételkínálattól a szívverést felgyorsító tevékenységekig – legyen szó tudatos jógagyakorlatokról, több kerékpárról a part felfedezéséhez vagy az innovatív edzésmódokról megújult fedélzeti fitneszközpontunkban – az Avalon könnyedén lehetővé teszi, hogy a világ legszebb tájai között is az egészség megtestesítője maradj.


Fitness Centre
Fedélzeti Fitneszközpont
Bár egy Avalon körutazás során a pulzus természetesen megemelkedik, minden Avalon Suite Ship hajón megtalálható a legmodernebb kardió- és súlyzós edzőgépekkel felszerelt, megújult fitneszközpont azok számára, akik nem szeretnék pihenőre küldeni hasizmaikat, bicepszüket vagy tricepszüket.
Jacuzzi a Skydeck tetején
Bár egy Avalon körutazás során a pulzus természetesen megemelkedik, minden Avalon Suite Ship hajón megtalálható a legmodernebb kardió- és súlyzós edzőgépekkel felszerelt, megújult fitneszközpont azok számára, akik nem szeretnék pihenőre küldeni hasizmaikat, bicepszüket vagy tricepszüket.
Az Avalon utazói minden pillanatban elmerülhetnek az élményekben. Merüljön el a lenyűgöző tájak kultúrájában és gasztronómiájában, majd koccintson a nap végén a megnyugtató buborékokkal teli, nyugtató Sky Deck jacuzziban.
Jóga a fedélzeten
Mielőtt felfedezné a királyok, királynők és hódítók életét, könnyedén megtalálhatja belső harcosát, kobráját vagy boldog babáját. Az Avalon Adventure Hosts minden napot egyesítve indítanak jóga pózokkal, Pilates gyakorlatokkal és finom nyújtásokkal a friss reggeli levegőn a Sky Decken vagy panorámás kilátással a Panorama Lounge-ban. A lefelé néző kutyák is szívesen látottak.

Hairdressing Salon
Situated on the Royal Deck you might like to take advantage of the onboard hairdresser to indulge in a manicure or hair styling.

Deck Games Area
Relax after a long day and play a game with your fellow guests at the Game area towards the rear of the deck.
Laundry
Internet Access
Medical Services
Dress Code
Age Restrictions
Smoking Policy
Accessibility
Special Dietary Requirements
Sustainable Travel
Air Conditioning
Adults Only
All ages welcome
Let our specialists help you find the perfect voyage aboard this magnificent vessel.
(+886) 02-2721-7300Contact Advisor139 voyages found
Let our specialists help you find the perfect voyage aboard this magnificent vessel.
(+886) 02-2721-7300Contact Advisor