
Passengers
130
Cabins
64
Tonnage
2,022t
Crew
37
Length
361m
Speed
13 knots
Launched
2016
Class
Suite Ship
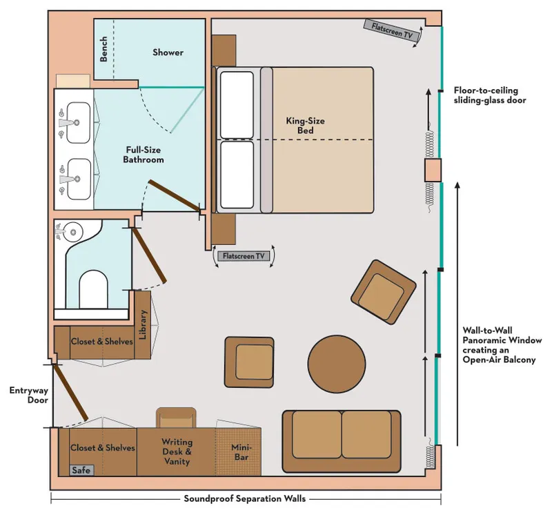
Ako je slika sve, Avalon Imagery II je prava stvar. Avalon Imagery II utjelovljuje sve izvanredne tradicije Avalona kako bi pružio izvanredna krstarenja i usluge. Putnici mogu birati između dva puna paluba Panorama Suite apartmana, s panoramskim prozorima od zida do zida i od poda do stropa koji pretvaraju životni prostor u jedini otvoreni balkon na riječnim krstarenjima. Sa prostranih 200 četvornih stopa, naši Panorama Suite apartmani su više od 30% veći od industrijskog standarda, pružajući neusporedivu priliku da se svako jutro probudite uz veličanstvene europske krajolike pod nogama. Na brodu su dostupni besplatni Starlink Wi-Fi, fitness centar, dizalo, alternativne lagane opcije jelovnika u Panorama Bistrou ili ručak na otvorenom uz roštilj u Sky Bistrou. Opustite se koliko želite na prostranoj Sky palubi u vrhunskim ležaljkama, osvježite se u whirlpoolu, sklonite se u hladovinu na palubi i igrajte društvene igre! Vaša slika upravo je postala mnogo opuštenija.










Panorama Suite



Royal Suite



Deluxe Stateroom
Od polja do stola.
Svježe i lokalno. Dok upijate raskošne prizore, naši inovativni kuhari donose lokalne delicije na vaš tanjur.
VRIJEME ZA UŽITAK!
Uzmite mjesto za stolom ili se udobno smjestite pod pokrivače uz izbor gastronomskih doživljaja – od večere u elegantnoj blagovaonici, preko delicija na nebeskoj palubi, do doručka u krevetu!
Doručak
Svježe kave i panoramski pogledi poslužuju se uz bezbroj izbora za izlazak sunca, uključujući tornjeve superhrane i specijalitete pripremljene po narudžbi.
Ručak
Napunite energiju za svoje avanture regionalnim poslasticama i domaćim slasticama – od nebeskih specijaliteta do prizemnih favorita za kojima žudite.
Večera
Bilo da odaberete raskošnu večeru od četiri slijeda ili lagani degustacijski meni, ručno izrađena izvrsnost uvijek je na jelovniku.
Avalon Fresh: Zdravi jelovnik koji svi obožavaju.
Uz naš ekskluzivni Avalon Fresh jelovnik, možete uživati u luksuznoj krstarenju bez odricanja od zdravih navika. Od osvježavajućih sokova za doručak, preko umjetnički složenih salata za ručak, do proteinski bogatih jela za večeru – Avalon Fresh opcije, uključujući vegetarijanske i veganske specijalitete, dostupne su na svakom obroku kako biste bez grižnje savjesti uživali u kreativnoj kuhinji bez kompromisa u okusu.
Večera je spremna (ili doručak i ručak) kad i vi.
Avalonov Flex Dining® unosi novo značenje u pitanje „Gdje ćemo jesti?“ s izborom kada i gdje ćete objedovati na brodu. Raznovrsnost jelovnika i lokacija bez strogih rasporeda koji kvare zabavu. Uživajte u stilu u prostranoj i elegantnoj blagovaonici Panorama s zidovima od stakla ili se prepustite zalogajima u ugodnom Panorama Bistrou. Više volite objed na otvorenom? Uzmite besplatnu piknik košaru za ukusni obrok na kopnu, smjestite se za ručak na otvorenom na promatračkoj palubi ili uživajte u vrućim specijalitetima s roštilja na Sky Decku! Trebate popodnevni zalogaj? Budite naši gosti na elegantnoj popodnevnoj čajanci u Panorama Bistrou i zadovoljite svoju želju za slatkim!



Dining Room
Glavni restoran broda je Dining Room smješten na palubi Sapphire. S elegantno jednostavnim dizajnom, možete uživati u bogatom bife doručku ili ručku s posebnim opcijama za one koji preferiraju laganije obroke, te u ukusnim večerama od četiri slijeda u večernjim satima.
AVALON FRESH
Uz naš ekskluzivni jelovnik Avalon Fresh, možete uživati u raskošnoj krstarenju, a da pritom ne odstupite od svojih zdravih navika. Od osvježavajućih sokova za doručak, preko umjetnički složenih salata za ručak, do visokoproteinskih jela za večeru, Avalon Fresh opcije—uključujući vegetarijanske i veganske specijalitete—dostupne su pri svakom obroku, omogućujući vam da bez grižnje savjesti uživate u kreativnoj kuhinji bez kompromisa u okusu.

Sky Grill

Panorama Lounge & Bistro

Room Service



Reception

Club Lounge
Club Lounge with 24-hour self-serve beverage station with complimentary cappuccinos, lattes, tea, hot chocolate & premium coffees, as well as treats throughout the day.



Panorama Lounge
The Panorama Lounge can be found on the Royal Deck, next to Panorama Bistro.

Observation Lounge
The Observation Lounge can be found on the Royal Deck.
IZABERITE SVOJU ZNATIŽELJU.
Najljepši su dani oni kada se budimo s otvorenim rasporedom, svijetom mogućnosti i praznim platnom koje možemo obojiti kako želimo. Sve Avalon krstarenja nude uzbudljiv izbor uključenih Avalon Choice izleta koji naše putnike vode u potragu za poviješću, misterijom, kulturom i gastronomijom, pružajući neusporedivu raznolikost na uzvišen način. S Avalonom, putnici biraju sami.
Igrajte se po svojoj mjeri uz uključene Choice izlete!
Veslajte kroz slikovite krajolike ili pedalirajte kroz klasične gradske prizore. Pripremajte ukusna jela prenesena generacijama ili miješajte boje kako biste pratili poteze umjetničkih genija. Sanjajte kroz dvorane drevnih dvoraca ili se zadržite u uskim ulicama kamenih sela. Odaberite kako ćete se zabaviti uz ekskluzivne i uključene Avalon Choice izlete, savršen način da putovanje prilagodite svojim željama, strastima i osobnom stilu.
LOKALNI VODIČ KOJI JE ZAISTA LOKALAN.
Što je stručni lokalni vodič? To je jasno, ali vjerujemo da pravi lokalni vodič poznaje regiju iz vlastitog iskustva – ne iz vodiča. Vaši lokalni vodiči na Avalon Waterways putovanju strastveno dijele legende i priče iza znamenitosti. Rado će vam pokazati svoj kutak svijeta, tako da ćete otići s istinskim osjećajem i razumijevanjem novih otkrivenih destinacija.



Active Excursions


Discovery Excursions
Buđenje za sva osjetila, Avalonove Discovery izlete krasi dirljiva toplina, uzbuđenje za um i praktična avantura. Sjednite i uživajte u zvucima bečkog valcera, zavrnite rukave i slikajte poput Van Gogha ili zavežite pregaču i pripremite lokalni specijalitet.


Classic Excursions
ZA SANJARE.
Ništa ne nadmašuje klasiku! Avalonove klasične izlete vode vas kroz bezvremenske priče na vođenim turama po znamenitim gradovima, prijestolnicama i dvorcima. Preskočite redove dok vam srce ubrzano kuca u prostorijama gdje se povijest doista dogodila.


Avalon Adventure Center
Adventure Center u predvorju vašeg broda ima sve što vam treba kako biste svaki dan učinili nezaboravnim, uključujući FitBit uređaje, trake za istezanje, joga prostirke i još mnogo toga. Za one koji vjeruju da je svijet teretana, vaš Adventure Host spreman je pomoći vam da krstarite cestom, osvojite planinu ili veslate uz obalu rijeke uz besplatne bicikle, nordijske štapove za hodanje i kajake.
Besplatni bicikli
Veselju biciklista nema kraja! Svaki Avalon brod opremljen je besplatnim biciklima i električnim biciklima za slikovite vožnje kopnom i gradske avanture. Obratite se svom Avalon Adventure Hostu za karte, prijedloge i osobno prilagođene rute kreirane uz Komoot, najcjenjeniju aplikaciju za planiranje i navigaciju za biciklizam i planinarenje.
Prikladno za sve.
Pozdraviti avanturu ne znači oprostiti se od zdravih navika i obnavljajućih rituala. Od jelovnika koji čuva srce do aktivnosti koje ubrzavaju puls – od pažljivih joga pokreta do više bicikala za istraživanje obale i inovativnih načina vježbanja u našem obnovljenom fitness centru na brodu, Avalon vam olakšava da ostanete oličenje zdravlja usred najljepših krajolika na svijetu.

Fitness Centre
Fitness centar na brodu
Iako su otkucaji srca prirodno ubrzani tijekom krstarenja Avalon, svaki Avalon Suite Ship opremljen je modernim fitness centrom—s najnovijom kardio i opremom za trening snage—za one koji ne žele dati svojim trbušnjacima, bicepsima ili tricepsima odmor.
Vrtlog na vrhu Skydecka
Iako su otkucaji srca prirodno ubrzani tijekom krstarenja Avalon, svaki Avalon Suite Ship opremljen je modernim fitness centrom—s najnovijom kardio i opremom za trening snage—za one koji ne žele dati svojim trbušnjacima, bicepsima ili tricepsima odmor.
Putnici Avalona uživaju u potpunim doživljajima na svakom koraku. Upijajte kulturu i kuhinju fascinantnih regija, a zatim nazdravite danu uz terapeutske mjehuriće u umirujućem vrtlogu na Sky Decku.
Joga na brodu
Prije nego što krenete otkrivati živote kraljeva, kraljica i osvajača, lako možete pronaći svog unutarnjeg ratnika, kobru ili sretno dijete. Avalon Adventure Hosts započinju svaki dan kombinacijom joga poza, Pilates vježbi i nježnih istezanja na svježem jutarnjem zraku na Sky Decku ili uz panoramski pogled u Panorama Loungeu. Dobrodošli su svi položaji, pa i pas koji gleda prema dolje.

Hairdressing Salon
Posjetite Frizerski salon i razmazite se novom frizurom koju će vam oblikovati profesionalni frizer. Dostupni su i drugi tretmani za njegu.

Deck Games Area
Accessibility
Avalon Waterways čini razumne napore kako bi udovoljio posebnim potrebama putnika s invaliditetom i ograničenom pokretljivošću, no ne preuzima odgovornost ukoliko to ne bude moguće. Budući da u mnogim situacijama ne možemo pružiti individualnu pomoć putnicima, a većina naših prijevoznih usluga nije opremljena rampama za invalidska kolica, preporučujemo da detaljno proučite naše uvjete i odredbe te nas kontaktirate kako biste saznali više.
Age Restriction
U našim dugogodišnjim iskustvima krstarenja, uočili smo da su djeca mlađa od osam godina obično premala da bi u potpunosti uživala u luksuznom krstarenju. Zbog toga, kao i radi sigurnosti i ugode svih putnika, ne prihvaćamo djecu mlađu od osam godina. Također, napominjemo da na našim brodovima nema posebnih sadržaja ni aktivnosti namijenjenih djeci.
Smoking Policy
Dress Code
Special Dietary Requirements
Svjesni smo da neki putnici mogu imati posebne prehrambene zahtjeve. Nažalost, ne možemo jamčiti ispunjavanje svih prehrambenih potreba tijekom naših putovanja. Ulažemo maksimalan trud kako bismo udovoljili vašim željama, no naši brodovi, kao i hoteli i restorani, možda neće moći u potpunosti prilagoditi specifične dijete. Molimo da svoje prehrambene zahtjeve navedete prilikom rezervacije te da ih dodatno dogovorite s upraviteljem hotela prilikom ukrcaja.
Internet Access
Medical Services
Laundry
Air Conditioning & Heating
Sustainable Travel
Freedom Included. Rules not allowed.
Adults Only
All ages welcome
Let our specialists help you find the perfect voyage aboard this magnificent vessel.
(+886) 02-2721-7300Contact Advisor127 voyages found
Let our specialists help you find the perfect voyage aboard this magnificent vessel.
(+886) 02-2721-7300Contact Advisor